Осло

150,4
Общая площадь
8.00 x 10.00
Размеры
Нет
Гараж
5
Кол-во комнат
60 дней
Срок строительства
Каркас
Гарантия 5 лет
от 2 850 000
Газобетон
Гарантия 5 лет
от 4 750 000
Кирпич
Гарантия 5 лет
от 6 175 000
Монолит
Гарантия 5 лет
от 8 550 000

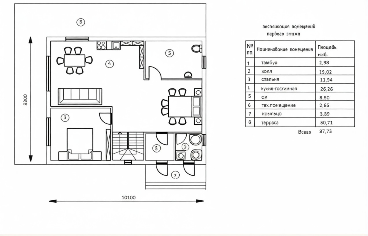
Проект дома Осло

Проект дома Осло — очень рациональный дом, сочетающий удобство планировок и достаточно низкую цену. Терраса значительно увеличивает полезную площадь дома. Большая терраса и холл, являющийся в данном проекте и шлюзом, уменьшающим потери тепла дома, составляют зону входа.

Дверь санузла и кухни-столовой, выходят в холл. Зона приготовления и потребления пищи отделяется от гостиной условной перегородкой, открытый проём которой располагается под маршем поворотной лестницы.

Зона ночного отдыха хозяев дома традиционно запроектирована на верхнем этаже. Её объём за счёт надстройки над террасой увеличен и позволяет расположить здесь две спальные комнаты. Их объединяет холл мансарды. Дополняет планировку этажа кладовая.

Похожие проекты

Ритм
7.00 x 11.00
125 м²
3 комнаты
Ритм
Лейден
9.00 x 12.00
136.7 м²
4 комнаты
Лейден
Аста
11.00 x 12.00
148,1 м²
5 комнат
Аста
Монолит
12.00 x 11.00
224.78 м²
4 комнаты
Монолит
Москва
10.00 x 10.00
94 м²
3 комнаты
Москва
Дачный рай
150 м²
4 комнаты
Дачный рай

Как мы работаем

Составление сметы
Составление сметы
Составление сметы
Выезд на участок
Составление сметы
Заключение договора
Составление сметы
Строительство дома
Составление сметы
Подписания акта

Готовы обсудить
свой проект?

Оставьте свои данные и в течении 30 минут с Вами свяжется менеджер для обсуждения всех вопросов

Дом